用途
该法兰活塞式减压阀主要用于蒸汽管路,适用于流量大流量变化大,进口压力变化大的蒸汽管路,起减压稳压作用。
执行标准
设计制造:GB/T12246
连接法兰:GB/T17241.6、GB/T9113
结构长度:JB/T2205
试验检验:GB/T12245
特点
1、先导式控制,可设定出口压力,调节方便,控制精确。
2、活塞式驱动原件,动作灵敏,抗老化,耐温较高。
3、不受进口压力波动影响,可减动压,也可减静压,性能稳定的。
4、阀芯上下均设有导向,动作平稳。
| 型号 | 公称通径 | 适用温度℃ | 适用介质 | 主要零件材料 | ||||
| 阀体、阀盖、 | 阀杆、阀瓣 | 主弹簧 | 膜片 | 密封圈 | ||||
| KFY11X-16T~25T | 15~50 | ≤80 | 水、气、油 | 铜合金 | 铜合金 | 不锈钢硅锰钢 | 增强橡胶 | 橡胶 |
| KFY11X-16P~25P | 15~50 | ≤80 | 水、气、油 | 不锈钢 | 不锈钢 | |||
主要连接尺寸
| 型号 | 尺寸 | 15 | 20 | 25 | 32 | 40 | 50 |
| 1/2 | 3/4 | 1 | 1 1/4 | 1 1/2 | 2 | ||
| KFY11X-16/25 | L | 76.5 | 76.5 | 85 | 98 | 102 | 117 |
| H | 85 | 100 | 128 | 160 | 186 | 208 | |
| H1 | 40 | 40 | 55 | 65 | 65 | 80 |
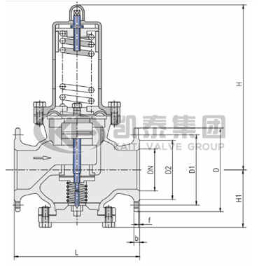
法兰活塞式减压阀结构图
提示: KFY11X 法兰活塞式减压阀尺寸等信息仅供参考,修改恕不另行通知。如需准确的减压阀产品系列资料,请致电我公司索取,我们竭诚为您服务! 电话:021-36160823 .